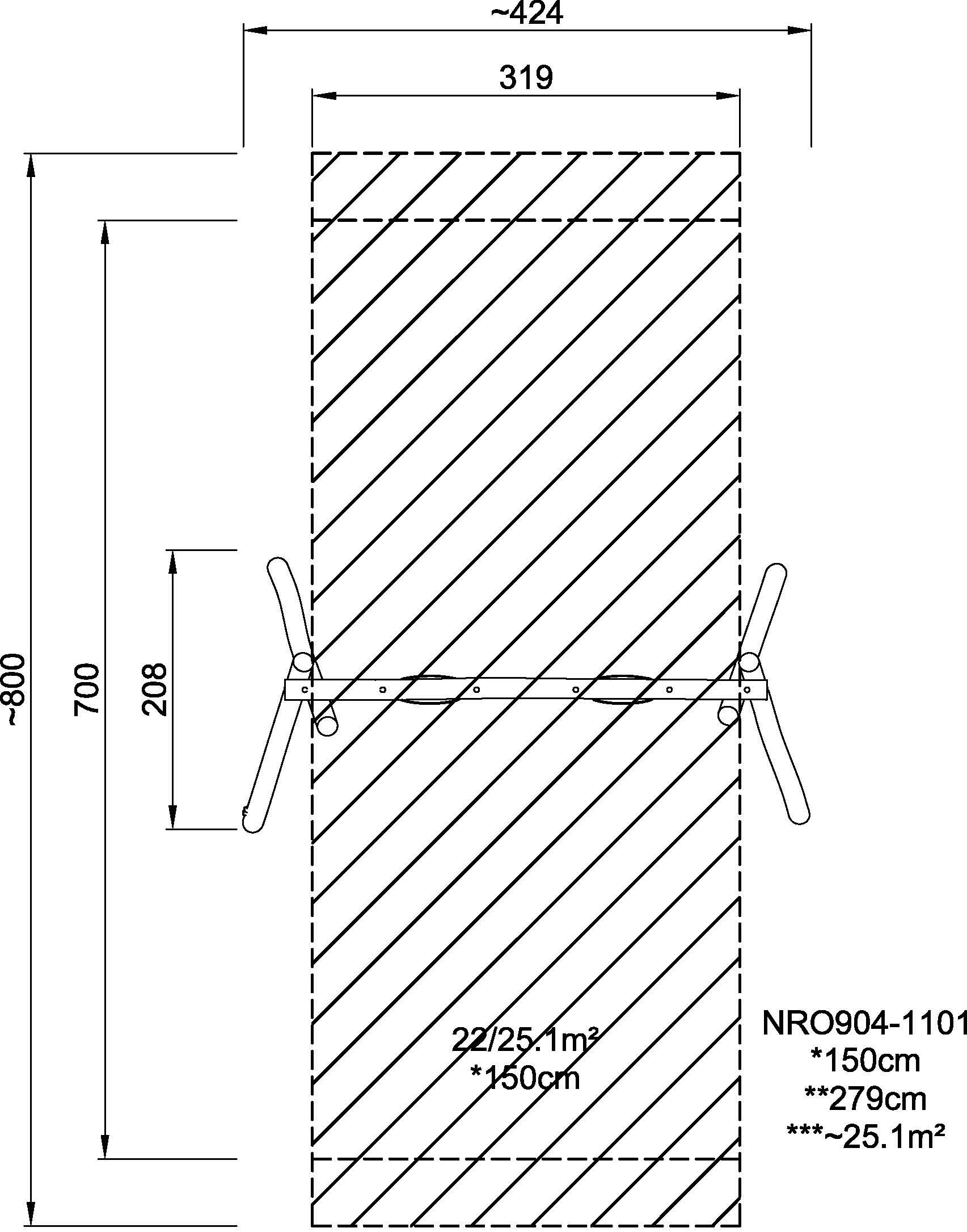
Two single swing seats
Physical
balance, coordination and spatial awareness are trained when swinging. All necessary when judging distances and managing traffic safely.
Social-Emotional
parallel play invites cooperation and consideration.
Cognitive
'Cause and effect' understanding, managing rhythm and thinking skills for younger children when swinging. Rules games for bigger children.













