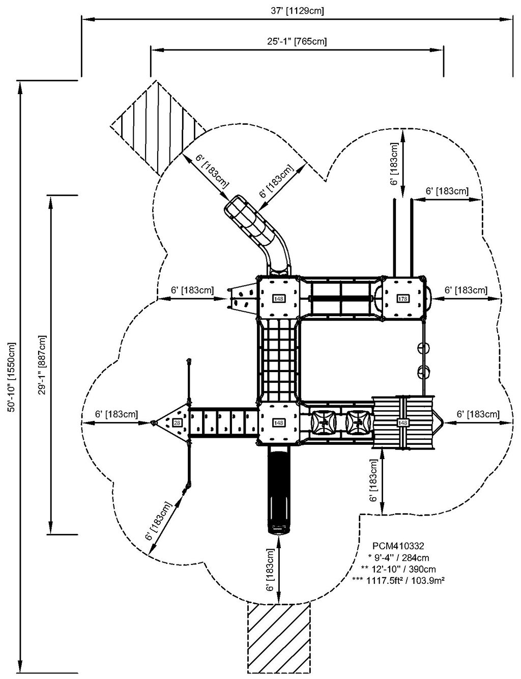
Rapella
Physical
supports cross coordination, proprioception and sense of space. Leg and core muscles are used intensely. Upper body muscles are developed when children pull themselves upwards in the rope.
Social-Emotional
turn-taking and self-regulation, both important life skills.















